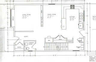
My name is Andrea Galbraith. My children and I are the recipients of the 2008 Habitat for Humanity house. We are very excited and appreciate all the hard work and support we are receving by everyone through this journey. Through the process of this building project I will be updating this blog, so that you can follow the progress.
No comments:
Post a Comment